Ezekiel's Temple

Schematic of Ezekiel's Temple drawn by Dutch architect Bartelmeüs Reinders, Sr. (1893–1979)

Ezekiel's Temple is an unbuilt temple structure described in the biblical Book of Ezekiel.

Details

Temple floor sketch based on Rabbi Meir Leibush ben Yehiel Michal's commentary to the Hebrew text of Ezekiel
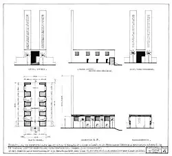
Gateways of Ezekiel's Temple, as described in the Book of Ezekiel, drawn by the Dutch architect Bartelmeüs Reinders (1893–1979)

Features of the temple are described in detail in the book of Ezekiel,[1] in the form of a vision given to the prophet. Physical characteristics of the multi-level wood-panelled structure such as gateways, outer and inner courts, side chambers and vestibules, archways, doors, windows, sanctuary and altar are described. Some furnishings are described. Details of decoration are given, for example cherubim and palm trees carved on the doors and walls. The purposes of the side chambers are given, for example, for robing of the priests, for consumption of the flesh of sacrifices by the priests, and for singers. Dimensions are given based on the cubit.

Commentary

The fact that details of the temple are given in the context of a prophetic vision, gives rise to analysis and debate regarding the meaning, significance and purpose of the temple.

Jewish commentary

Maimonides called it "the temple that will be built" and qualified these chapters of Ezekiel as complex for the common reader and even for the seasoned scholar. Bible commentators who have ventured into explaining the design detail directly from the Hebrew Bible text include Rashi, David Kimhi, Yom-Tov Lipmann Heller, and Meir Leibush ben Yehiel Michal, who all produced slightly varying sketches of the temple envisioned by Ezekiel.

Christian commentary

Some Christian interpretations of Ezekiel's temple are: it is the temple that Zerubbabel should have built; a literal temple to be rebuilt during the millennial reign of Christ; a temple which is symbolic of the worship of God by the Christian church today; or a symbol of the future and eternal reign of God.[2] A number of Christian commentators also believe that this temple will be a literal fourth temple, which will exist during the Millennial Kingdom, following the destruction of a future temple that will be desecrated by the Antichrist.[3][4][5][6] Author Paul Backholer envisions this premise in a 3D presentation of Ezekiel's Temple.[7]

Other theorists instead see Ezekiel's Temple as the New Jerusalem described in the book of Revelation; the bride of the Lamb (whose form and composite materials are similar to the Sanctuary); the Temple of God being the Christians themselves, where his Spirit will dwell in them (1 Corinthians 3:16).[8]

See also

References

  1. ^ Ezekiel 40:1–42:20
  2. ^ The One Year Bible Companion, Carol Stream, Illinois: Tyndale House, 1992, p. 19, ISBN 9781414328102
  3. ^ Gerry Burney (May 16, 2016). "The Third Temple… And, Then The 4th! A Prophecy From John?". Target Truth Ministries. Archived from the original on February 23, 2020. Retrieved November 1, 2020.
  4. ^ Richard Schmidt (September 16, 2016). "The Third Temple Period: Transition from the Third to the Fourth Temple Period (Part A)". Dispensional Publishing House. Retrieved March 15, 2019.
  5. ^ "16.5.10.1. The Predicted Millennial Temple". BibleStudyTools. 2004. Retrieved March 15, 2019.
  6. ^ Tim McHyde (June 2, 2017). "The Third Temple Prophecy: What's Holding Back Its Fulfillment?". Escape All These Things. Retrieved March 15, 2019.
  7. ^ "Ezekiel's Temple in 3D Explained". By Faith. Retrieved 2025-03-04.
  8. ^ Jonathan Menn, J.D., M. Div. (2019). "Ezekiel's Vision of a New Temple". Thirdmill. Retrieved June 25, 2023.{{cite web}}: CS1 maint: multiple names: authors list (link)

Further reading

  • Henning, Emil Ezekiel's Temple. Xulon Press, 2013. ISBN 1626975132
  • Theo. G. Soares. “Ezekiel's Temple.” The Biblical World, vol. 14, no. 2, 1899, pp. 93–103. JSTOR, Ezekiel's Temple
  • Duguid, Iain M., "The NIV Application Commentary - Ezekiel", p. 481, Zondervan, 1999
  • McConville, J. Gordon, "Exploring the Old Testament: A Guide to the Prophets", pp. 101–2, IVP Academic, 2002
  • Ganzel, Tova, Ezekiel’s Visionary Temple in Babylonian Context, forthcoming, De Gruyter 2021.
  • Chase, Neal, Ezekiel's Temple in Montana, 1991. [1]
  • Berry, Bob, 'Ezekiel's Temple', Scripture Teaching Library, 2022 (292 pages). ISBN 978-1-909789-63-0