Richard Sammons

Richard Sammons
Born (1961-05-18) May 18, 1961
NationalityAmerican
EducationDenison University
University of Virginia (MArch)
OccupationArchitect

Richard Sammons (born May 18, 1961, in Columbus, Ohio) is an American architect, architectural theorist, visiting professor, and chief designer of Fairfax & Sammons Architects with offices in New York City, New York and Palm Beach, Florida. The firm has an international practice specializing in classical and traditional architecture, interior design and urban planning. Sammons was instrumental in the reemergence of classical design as a major movement in America through his designs as well as his work as an instructor at the Prince of Wales Institute in Britain in 1992-3 and as a founding member of the Institute of Classical Architecture in 1991. From 1996 to 2004, the Fairfax & Sammons office also served as the headquarters for the noted American architecture critic Henry Hope Reed Jr. (1915) and Classical America, the organization he founded in 1968. In 2013, Fairfax & Sammons received the Arthur Ross Award for Lifetime Achievement in Architecture, an award created to recognize and celebrate excellence in the classical tradition.[1]

Early life and education

Sammons was born in Columbus, Ohio and received his bachelor's degree from Denison University in Granville, Ohio in 1983. His duel interests in Physics and Art, and his undergraduate degree in Studio Art, presaged the later intense focus upon proportion that became a significant hallmark of his design work. He received his Master of Architecture degree at the University of Virginia in 1986. His interest in classical design found support in this period of university education due to the leadership of Dean Jaquelin T. Robertson whose own work and background made him sympathetic to classicism. Sammons also developed a breadth of knowledge through his work as a teaching assistant to the internationally recognized architectural historian and Jefferson scholar, Dr. Frederick Doveton Nichols (1911-1995). Because the faculty of the University of Virginia School of Architecture focused primarily on modernism, Sammons looked to Thomas Jefferson as one of his principal instructors.

Career

Sammons served his internship in the Manhattan office of David Anthony Easton, a classicist specializing in residential design. At Easton's office, Sammons learned detailing from Joe Marino, an architect who acquired his practical training in the Manhattan firms of Cross and Cross,[2] and later Egerton Swartwout and Philip Goodwin. In 1992 Sammons established the firm of Richard Sammons Architect in New York City, New York. In 1997 Sammons and his wife Anne Fairfax renamed the firm Fairfax & Sammons Architects, PC. The firm has a second office in Palm Beach, Florida opened in 1998. Sammons is a registered architect in New York, Virginia, Connecticut, Ohio, Florida, Georgia, North Carolina, and South Carolina.

In addition to architectural practice, Sammons has taught classes (on architectural design and proportion) at the University of Notre Dame in Rome (Fall 2008); the Georgia Institute of Technology as the Harrison Design Associates Visiting Scholar (Fall 2005); as an instructor, The Prince of Wales Institute of Architecture London, England and the American Summer School (1993 – 1996); and Adjunct Professor of Architecture, Pratt Institute School of Architecture (1987 – 1996). Sammons also served as Associate Director, The Institute of Classical Architecture and The New York Academy of Art from 1993 to 1996.

Sammons was a founder of The Institute of Classical Architecture & Classical America. He has served as a board member of The Institute of Classical Architecture & Classical America; The Royal Oak Foundation; The Historic House Trust of New York City; The Sir John Soane's Museum Foundation; The Merchants House Museum, New York and he is a Guild Member of The New Urban Guild, a member of the INTBAU College of Traditional Practitioners (ICTP) and a Brother of The Art Workers Guild in London.

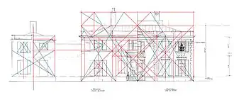
Geometric proportioning in practice: examples from the work of Fairfax and Sammons

Awards

Year Award Awarded by Category
2020 Palladio Award Traditional Building and Period Homes[3] Restoration and Renovation
2019 Stanford White Award The Institute of Classical Architecture and Art[4] Residential Architecture - New Construction Over 5,000 SF
2019 Addison Mizner Medal The Institute of Classical Architecture and Art Florida[5] Renovation/Addition
2019 Addison Mizner Medal The Institute of Classical Architecture and Art Florida[6] Renovation/Addition
2018 Polly Earl Award Palm Beach Preservation Foundation[7] Excellence in the rehabilitation of smaller scale, landmarked properties
2018 Stanford White Award The Institute of Classical Architecture and Art[8] Residential Architecture – Renovations & Additions
2018 Addison Mizner Medal The Institute of Classical Architecture and Art Florida[9] Renovation/Addition
2018 The Richard H. Driehaus Building Arts Award Driehaus International Competition [10] Honorable mention for Urban Design
2018 Palladio Award Traditional Building and Period Homes[11] Residential Multi-Unit
2017 Stanford White Award The Institute of Classical Architecture and Art[12] Residential Architecture – New Construction Under 5,000 SF
2017 The Richard H. Driehaus Building Arts Award Driehaus International Competition [13] Honorable mention for Urban Design
2017 Palladio Award Traditional Building and Period Homes[14] New Design & Construction, more than 5,000 SF
2017 Addison Mizner Medal The Institute of Classical Architecture and Art Florida[15] Interior Architecture
2016 Palladio Award Traditional Building and Period Homes[16] New Design & Construction, less than 5,000 SF
2016 Addison Mizner Medal The Institute of Classical Architecture and Art Florida[17] Residential
2015 Addison Mizner Medal The Institute of Classical Architecture and Art Florida[18] Architecture Interiors
2015 Stanford White Award The Institute of Classical Architecture and Art[19] Multi-family
2013 The Arthur Ross Award, for Lifetime Achievement in Architecture The Institute of Classical Architecture and Art[20] Excellence in preserving and advancing the Classical tradition
2010 Philip Trammell Shutze Award The Institute of Classical Architecture and Art[21] Residential Over 10,000 SF
2010 Philip Trammell Shutze Award The Institute of Classical Architecture and Art[22] Urban Design
2010 CNU Charter Award Congress for the New Urbanism[23] Block, Street, and Building

Projects

Richard Sammons' projects include the following:
(For images and a description of each project refer to the firm's website: https://fairfaxandsammons.com/portfolio/)

Town

  • Renovations to an Upper West Side Apartment, New York
  • Renovation of a Greenwich Village Townhouse, New York
  • Carriage House & Studio, Greenwich Village, New York
  • Upper East Side Apartment, New York
  • Upper East Side Townhouse, New York
  • Upper West Side Artist Residence, New York
  • Rustic French Maisonette, Greenwich Village
  • Breakers Row Apartment, Palm Beach
  • Central Park South Apartment, New York
  • Park Avenue Residence, New York
  • Central Park West Apartment at The Prasada, New York
  • Italianate Townhouse, Greenwich Village, New York

Country

  • Gothic Revival Restoration, Bedford, New York
  • New Federal House, Cooperstown, New York
  • New Palladian Villa, The Peak, Hong Kong
  • New Georgian Residence, Washington, Connecticut
  • English Arts & Crafts, Lake Waccabuc, New York
  • Georgian Revival Addition, Lexington, Kentucky
  • New Jeffersonian Residence, Southport, Connecticut
  • Arts & Crafts Stone Cottage, Snedens Landing, New York
  • Georgian Arts & Crafts, Greenwich, Connecticut
  • Shingle Style Restoration, Greenwich, Connecticut
  • House in Caesarea, Israel

Seaside

  • Il Cortile, A New House in Palm Beach, Florida
  • New House in Lost Tree Village, Palm Beach, Florida
  • New British Colonial, Jupiter, Florida
  • Regency House Renovation, Palm Beach, Florida
  • New House and Outbuildings on Gin Lane, Southampton, NY
  • New House in the Hamptons, Southampton, NY
  • The Restoration and Addition to an Anglo-Caribbean House, Palm Beach, Florida
  • New Anglo-Caribbean, Gulfstream, Florida
  • Renaissance Revival Estate, Palm Beach, Florida
  • Setai Penthouse, Miami, Florida

Neighborhood

  • New Townhouses in Brooklyn, NY
  • New Urban Marina, Albany, Bahamas
  • University in Andorra, Spain
  • The Crescent, Poundbury, Dorset, England
  • New Urban Project, I'On Development, Mount Pleasant, South Carolina
  • Urban Design, Charleston, South Carolina

Books

  • American Houses - The Architecture of Fairfax & Sammons; Mary Miers (Author); Adele Chatfield-Taylor (Introduction); Rizzoli International Publications (November 2006); ISBN 0-8478-2857-3
  • Classical Architecture For The 21st Century; Francois Gabriel (Author); W. W. Norton & Company (April 2005); ISBN 0-393-73076-X
  • The Colonial Revival House; Richard Guy Wilson (Author); Harry N. Abrams (December 2004); ISBN 0-8109-4959-8
  • Get Your House Right: Architectural Elements to Use & Avoid; Marianne Cusato (Author), Ben Pentreath (Author), Leon Krier (Author), Richard Sammons (Author); H.R.H. The Prince of Wales (foreword); Sterling (January 1, 2008); ISBN 1-4027-3628-2
  • Learning From Palladio; Branko Mitrovic (Author); W. W. Norton & Company (May 2004); ISBN 0-393-73116-2
  • New Classicism: The Rebirth of Traditional Architecture; Elizabeth M. Dowling (Author); Rizzoli (October 29, 2004); ISBN 0-8478-2660-0
  • New Compact House Designs; Don Metz (Author); Storey Publishing, LLC (January 8, 1991); ISBN 0-88266-666-5
  • New Palladians: Modernity and Sustainability for 21st Century Architecture; Alireza Sagharchi (Author), Lucien Steil (Author); Artmedia Press (May 31, 2010); ISBN 1-902889-12-6
  • Big Book of Small House Designs; Dom Metz (Author), Catherine Tredway (Author), Kenneth Tremblay (Author), Lawrence Von Bamford (Author); Black Dog & Leventhal Publishers Inc (September 16, 2004); ISBN 1-57912-365-1
  • The Elements of Classical Architecture (Classical America Series in Art and Architecture); Georges Gromort (Author); Richard Sammons (Introductory Essay); W. W. Norton & Co. (June 20, 2001); ISBN 0-393-73051-4
  • Theory of Mouldings (Classical America Series in Art and Architecture); C Howard Walker (Author); Richard Sammons (Foreword); W. W. Norton & Co. (July 31, 2007); ISBN 0-393-73233-9
  • The Future of the Past: A Conservation Ethic for Architecture, Urbanism, and Historic Preservation; Steven Semes (Author); W. W. Norton & Company (November 9, 2009); ISBN 0-393-73244-4
  • The Venice Charter Revisited: Modernism, Conservation and Tradition in the 21st Century; HRH The Prince of Wales (Foreword, Author), Robert Adam (Author), Steven Semes (Author), A. G. K. Menon (Author), Samir Younés (Author), Susan Parham (Author), Gabriele Tagliaventi (Author), Paolo Marconi (Author), Matthew Hardy (Editor); Cambridge Scholars Publishing (November 1, 2009); ISBN 1-84718-688-2

Press

References

  1. ^ "Honors - Institute of Classical Architecture & Art".
  2. ^ Dowling, Elizabeth Meredith. New Classicism: the rebirth of traditional architecture. New York: Rizzoli, 2004. p.94
  3. ^ "2020 Palladio Award". Traditional Building Magazine. Retrieved 13 May 2020.
  4. ^ "2019 Stanford White Award". ICAA. Retrieved 4 October 2019.
  5. ^ "2019 Addison Mizner Winners". ICAA Florida. Retrieved 12 February 2020.
  6. ^ "2019 Addison Mizner Winners". ICAA Florida. Retrieved 12 February 2020.
  7. ^ "Design honors: Five Preservation Foundation of Palm Beach winners". Palm Beach Daily News. Retrieved 4 May 2018.
  8. ^ "The Institute of Classical Architecture & Art's 2018 Stanford White Awards". Traditional Building Magazine. Retrieved 13 November 2018.
  9. ^ "2018 Addison Mizner Winners". ICAA Florida. Retrieved 2 December 2018.
  10. ^ "Driehaus International Competition 2017-2018 Edition". Richard H. Driehaus Building Arts Awards and Architecture Competition 2017-2018. 26 June 2018. Retrieved 2 July 2018.
  11. ^ "2018 Palladio Award Winners". Traditional Building Magazine. Retrieved 14 March 2018.
  12. ^ "The Institute of Classical Architecture & Art's 2017 Stanford White Awards". ICAA. Retrieved 11 November 2017.
  13. ^ "Driehaus International Competition 2016-2017 Edition". Richard H. Driehaus Building Arts Awards and Architecture Competition 2016-2017. Retrieved 15 May 2017.
  14. ^ "Announcing the 2017 Palladio Winners". Traditional Building Magazine. Retrieved 24 March 2017.
  15. ^ "2017 Addison Mizner Winners". ICAA Florida. Retrieved 3 October 2017.
  16. ^ "The 2016 Palladio Award Winners". Traditional Building Magazine. Retrieved 31 March 2016.
  17. ^ "2016 Addison Mizner Winners". ICAA Florida. Retrieved 10 October 2016.
  18. ^ "2015 Addison Mizner Winners". ICAA Florida. Retrieved 5 October 2015.
  19. ^ "2015 Stanford White Award Winners". ICAA. Retrieved 11 December 2015.
  20. ^ "2013 Arthur Ross Awards". Traditional Building Magazine. Retrieved 28 July 2013.
  21. ^ "2010 Philip Trammell Shutze Award Winners". ICAA Southeast. Retrieved 23 February 2010.
  22. ^ "2010 Philip Trammell Shutze Award Winners". ICAA Southeast. Retrieved 23 February 2010.
  23. ^ "Charter Awards" (PDF). Congress for the New Urbanism. Retrieved 14 March 2011.