University of Perpetual Help System DALTA

University of Perpetual Help System DALTA
Pamantasan ng Laging Saklolo Sistemang DALTA (Filipino)
Former names
  • Perpetual Help College of Rizal (1975–1997)
  • University of Perpetual Help Rizal (1997–2004)
  • University of Perpetual Help DALTA System (2004–2005)
MottoCharacter Building is Nation Building
TypePrivate
EstablishedFebruary 5, 1975 (February 5, 1975)
FounderDr./Brigadier General Antonio L. Tamayo
Academic affiliations
PresidentAnthony Jose M. Tamayo
Academic staff
1,500 (all campuses)
Students18,500 (all campuses)
Location
Alabang-Zapote Road, Pamplona 3, Las Piñas
,
Metro Manila
,
Philippines

14°27′02″N 120°59′06″E / 14.4506°N 120.9851°E / 14.4506; 120.9851 (Las Piñas Main campus)
CampusUrban
Main

Satellite
  • Calamba
    4 hectares (40,000 m2)
    Barangay Paciano Rizal, Calamba, Laguna
  • Molino
    6 hectares (60,000 m2)(Molino Boulevard, City of Bacoor, Cavite)
Alma Mater songPerpetual Help Hymn
ColorsMaroon
   
   
gold
NicknameAltas
Sporting affiliations
NCAA (Philippines)
Websitewww.perpetualdalta.edu.ph
University of Perpetual Help System DALTA is located in Metro Manila
University of Perpetual Help System DALTA
Location in Metro Manila
University of Perpetual Help System DALTA is located in Luzon
University of Perpetual Help System DALTA
Location in Luzon
University of Perpetual Help System DALTA is located in Philippines
University of Perpetual Help System DALTA
Location in the Philippines

The University of Perpetual Help System DALTA (UPHSD) is a privately owned Catholic, co-educational institution of higher learning, with campuses at Las Piñas, NCR, Bacoor, Cavite and Calamba, Laguna in the Philippines. The university offers programs in preschool, primary, secondary, tertiary and graduate levels, as well as short term vocational, technical, and special programs.

History

University of Perpetual Help DALTA Medical Center in Las Piñas

Dr./BGen Antonio "Alta" Laperal Tamayo, the founder of UPHSD, was inspired by his parents, Jose G. Tamayo and his wife, Josefina Laperal Tamayo, who earlier founded what is now known as the University of Perpetual Help System JONELTA, in 1968, which has five campuses. The first campus established is the Perpetual Help College and Hospital in Manila to meet the local and international demand for nurses. Two years later (1970), the Perpetual Help College and Hospital Campus was founded in Malasiqui, Pangasinan, in response to the "government's program to promote health and educational development in the rural areas". This was followed by the founding of the third Campus at Perpetual Help School of Laguna, at Biñan, in 1976, and its medical school, the Perpetual Help School of Laguna Foundation. Thereafter, the Perpetual Help Campus at General Mariano Alvarez in Cavite and the Perpetual Help Campus in Cauayan, Isabela were established, bringing the number of campuses to five.

On February 5, 1975, just seven years after his parents opened the Perpetual Help College and Hospital in Manila, Dr/BGen Tamayo, alongside his wife, Dr. Daisy Moran Tamayo, founded their own school, the Perpetual Help College of Rizal (PHCR) along Alabang-Zapote Road, in Las Piñas, on February 5, 1975. The school was housed in a four-story building constructed in the record time of four months.

In 1976, one year after opening of the PHCR, they established the Perpetual Help Medical Center (PHMC) about 200 meters from the University. Through the years, the PHMC metamorphosed into the University of Perpetual Help Rizal Medical Center (UPHRMC). Today, its amended official and registered business name is University of Perpetual Help DALTA Medical Center (UPHDMC).

The initial academic offering of PHCR is Bachelor of Science in Nursing. Upon opening of the course, 700 students immediately enrolled. This beginning for the infant school opened the way for its expansion in terms of curricular programs, faculty, research, community service, infrastructure, and professional development. Such developments led the founders to convert the college to a university with the official name, University of Perpetual Help, Rizal (UPHR). Today, the former UPHR is known by its amended official and registered business name as University of Perpetual Help System DALTA (UPHSD). The term DALTA in the name of the university is the acronym for Daisy [and] Antonio Laperal TAmayo, the conjugal founders.

Administration of UPHSD

Complementing the leadership and management functions of Dr/BGen Antonio L. Tamayo and Dr. Daisy Moran Tamayo are their two sons, Dr. Anthony Jose M. Tamayo, and Lieutenant Colonel Richard Antonio M. Tamayo. The former assumed presidency of the UPHSD campuses in January 2010. Likewise, the latter was appointed as President of the University of Perpetual DALTA Medical Center. He is also the president of other DALTA companies including Dalta Builders, Inc., Health Care and Development Inc., Dalta Jonelta Foundation Inc, and AR Travel and Tours. He is the Executive Vice President for Administration for DALTA Group of Companies Central Office and Executive Director of DALTA Group of Companies, Zero Waste Management Committee.

University of Perpetual Help System

On April 20, 1997, the Commission on Higher Education (CHED), in its En Banc Resolution No. R 95–97, Series of 1997, granted university status to the University of Perpetual Help System Dalta (UPHSD) at Las Piñas, and the University of Perpetual Help System Jonelta (UPHSJ) at Biñan, as a single unit under the name University of Perpetual Help System, effective Collegiate Year (CY) 1997–1998.

Governance

The UPHS is governed by a single governing board of directors composed of 15 directors, of which 5 directors represent the University of Perpetual Help System Dalta, 5 for the University of Perpetual Help System Jonelta, and 5 for the UPH-Dr Jose G. Tamayo Medical University Foundation, with a single chairman of the board and CEO in the person of DR/BGen Antonio Laperal Tamayo.

The board of directors governs the UPHS through a central office headed by the chief executive officer (CEO). The CEO created the executive board which directly formulates, implements, and supervises all policies, guidelines, programs and projects relative to the philosophy, vision, mission, accreditation, standardization of curricular content and instruction, quality assurance, professional development, faculty research, and community service, among others, of the UPH Las Piñas and UPH Biñan.

Both UPH Las Piñas and UPH Biñan have their respective presidents who act as chief operating officers (COOs) of their respective campuses. They both directly report and are responsible to the chief executive officer.

The University of Perpetual Help System DALTA is recognized by Philippine Association of Colleges and Universities Commission on Accreditation (PACUCOA) as the only institution south of Metro Manila to have the most number of Level III Accredited programs.

Campuses

Las Piñas campus

The Las Piñas Campus, which is the site of the former Perpetual Help College of Rizal, is the largest among the three campuses of UPHSD. It has a student population of around 12,000 students and employs about 1,500 teaching and non-teaching staff. It offers more than 70 undergraduate and more than 10 postgraduate academic programs in addition to its primary and secondary academic offerings, which is among the largest in the Philippines.

Molino campus

The 2nd UPHSD campus, located along a 6-hectare property in Molino 3 Salawag Zapote Road, in the City of Bacoor, Cavite, was established and inaugurated in May 1995. Currently, UPHSD-MOL caters to a estimated student population of 6,000 - a dramatic increase based on its initial 700 enrollees.

Calamba campus

The 3rd UPHSD campus was established in 1996 in Calamba, Laguna, with an initial enrollment figure of 360 students. To date, its enrollment has increased to 7,500 enrollees.

Academic Support

Arts and Culture Office

The ACO is the umbrella organization of all artistic activities in the fields of music theater, song and dance arts for student-artists from various colleges of the University of Perpetual Help System DALTA.

  • Perpetual Chorale

The Perpetual Chorale, formerly known as the UPHSD Singing Ensemble/UPHSD Chorale, is the official chorale group of the University of Perpetual Help System DALTA Las Piñas. It is composed of student-artists from various colleges of the university. It aims to propagate, preserve and develop Philippine culture and arts through music. The UPHSD Chorale performs different genres of choral pieces such as Broadway, Classical, Foreign and Local Folk songs, Philippine Ethnic Songs, Contemporary Music, OPM and Sacred Music.

The Perpetual Chorale has been invited and performed in several events, and has made it to the stages of the Cultural Center of the Philippines for its open house festival: PASINAYA 2010 and PASINAYA 2011. The group has also been invited on many occasions to perform in the popular morning TV show Umagang Kay Ganda on ABS-CBN, a Filipino TV Channel, and also performed during the plenary session of the Senate of the Philippines in 2016 and 2017. This has been a venue for the group to showcase their talent in a televised setting.

Moderator/conductress: Ms. Jessica Love Dela Peña
Section Directors: Aubrey Gale Acdal, Ma. Angela Caluscosin, Matthew Anzaldo, Jerric Louis Braga
Consultants: Wendy Joyce Barcenas, and Jerome Alvarez

  • Sanlahi Pangkat Mananayaw (Folk Dance Troupe)

The Sanlahi Pangkat Mananayaw takes its name from two coined words, Isang Lahi which literally means, One Race. Composed of students from various colleges of the University.

  • Dulaang Perpetual (Theater Arts)

Dulaang Perpetual is the official resident student theater organization of UPHSD. It is a collective of young Perpetualiate artists and performers who create and stage plays from different theatrical genres, from contemporary to classical, and from experimental to guerilla performances (street performances) which shows the flexibility of the company and its student – actors.

Moderator: Ms. Anna Pauline Monserrate

  • Perpetual Dance Company

PDC in short, it is the official street/hip-hop dance team & representative of the University of Perpetual Help System Dalta - Las Piñas. The team was formed on August 20, 2015 and was founded by Mr. Bobby John H. Salinas the Performing Arts Group Coordinator, and their current moderator, Coach Cristin Cruz Gapasin.

Athletics

UPHSD colors

The UPHSD is a member of the National Collegiate Athletic Association (NCAA) since 1984, bearing the sports team moniker Perpetual Altas. As an active member of the NCAA, UPHSD seeks and trains young athletes to compete in all sports events of the league, representing the entire DALTA system, including the Molino, and Calamba campuses.

The moniker Altas comes from a Latin word that translates to English as “high,” symbolizing UPHSD's aspirations for further greatness. At the same time, it comes from the initials of the school founder, Dr./BGen Antonio L. Tamayo.

The senior varsity teams for men are named Perpetual Altas. The junior teams are the Junior Altas, while the women's teams are the UPHSD Lady Altas.

Basketball

Since it has joined the league, the Altas basketball team had won two General Championships from their winning years 1995-1996 and 1996–1997 in two consecutive seasons. They were able to reach the final four in the semifinals on NCAA's 80th season and in the 88th season under coach Januario “Aric” del Rosario. The most recent time that the university hosted the tournament was in 2011 of NCAA Season 87: Brazen at ‘87.

Cheerleading

The Altas Perpsquad nabbed the 1st Runner Up position in the National Cheerleading and Dance Championship National Capital Regional Qualifiers College Coed Division held from February 2 to 3, 2013 at the Music Hall of SM Mall of Asia in Pasay.[1]

They also hold the most win in NCAA Cheerleading Competition with a total of 9 wins, 2 back-to-back wins and a three peat wins. They also won in the South East Asian Cheer Open in 2015 bagging a Gold Medal title.

Students, faculty and staff members also participate in intramural and club sports, and use the excellent athletics and fitness facilities.

Pep Band

Aside with the Altas Perpsquad, The Altas Perpscussionists serves as the school's main pep band, and is highly involved during basketball and volleyball tournaments in the NCAA, and during cheerleading competitions. The band celebrated its 21st anniversary in 2019.

Beach Volleyball

The Altas men's pair, Jay Dela Cruz and Sandy Montero, seized their first ever championship crown. The Junior Team, Jherald Martinez and Cristopher Soriano, placed second in their barefoot fight in the beach volleyball finals.[2]

Volleyball

In Season 88, the ALTAS and Lady ALTAS grab its two-peat Back to Back Championship. The Lady Altas nabs its back-to-back championship and the ALTAS continued its reign of the Championship crown for three consecutive years (NCAA Volleyball Season 86th, 87th, and 88th).[3]

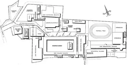
Campus Map

UPHSD Extension School at the Bureau of Corrections

The University of Perpetual Help System DALTA (UPHSD)’s 29-year-old Collegiate Extension School at the Bureau of Corrections in Muntinlupa is one of the corporate social responsibility programs of UPHSD and the Bureau of Corrections. It has produced more than 400 inmate-graduates. Many of these graduates have been released from prison and are now gainfully employed.

The program was founded by Dr./Bgen Antonio Laperal Tamayo, chairman of the board and CEO of the UPHS and former BuCor director Vicente Eduardo in 1984. Currently, the UPHSD Extension school offers academic programs in Bachelor of Science in Entrepreneurship, Bachelor of Science in Business Administration Major in Marketing Management, and Computer Hardware Servicing Course.

University of Perpetual Help Learning Center

Located in Sitio Lawaan, Lumangbayan, Abra de Ilog, Occidental Mindoro, the University of Perpetual Help Learning Center Mission School provides the Mangyan indigenous people in the area with free education, inclusive of their uniforms, school supplies, learning materials, clothing and other personal necessities.

It was envisioned by Dr./Bgen Antonio Laperal Tamayo to help the Mangyan people gain an upper hand in the social ladder of life. Thus, instilling in them ideas of citizenship and promote further social and intellectual development.

The school has embarked into a Functional Literacy Program last June 9, 2012 and officially received its Certificate of Recognition last September 13, 2012 from the Department of Education (DepED) of Region IV – MIMAROPA Division of Occidental Mindoro, Mamburao, thereby becoming a part of the Alternative Learning System (ALS) and Projects.

Notable alumni

References

  1. ^ "NCC NCR Cheerleading Qualifiers" (PDF).
  2. ^ "University of Perpetual Help ALTAS Grandslam Beach Volley Champion".
  3. ^ "University of Perpetual Help Lady ALTAS - Back to Back Champions".